-
Superficie
166 mq
-
Camere
3
-
Bagni
2
-
Locali
4.0
Descrizione
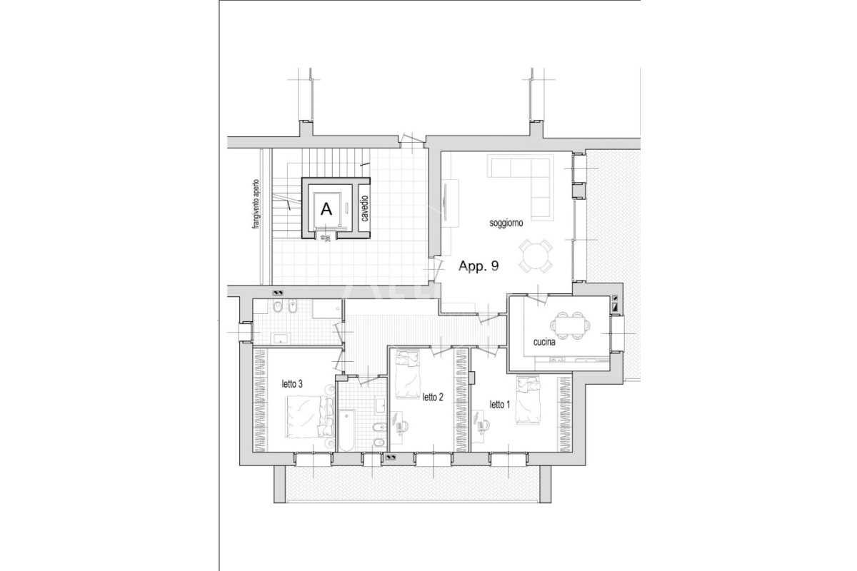
A Seregno, in una zona residenziale a due passi dal centro e ben collegata a tutti i servizi, proponiamo in vendita un elegante appartamento quadrilocale al secondo piano all’interno di un nuovo complesso residenziale di prossima realizzazione, progettato con particolare attenzione al comfort abitativo e all’efficienza energetica.
L’immobile, con una superficie commerciale di 166 mq, si compone di un ampio soggiorno con zona pranzo, cucina abitabile separata, tre camere da letto ben proporzionate, due bagni finestrati e disimpegno. La presenza di un terrazzo e un balcone per un totale di 40 mq consente di godere appieno della luce naturale e di piacevoli spazi all’aperto.
Costruito con materiali e tecnologie all’avanguardia, l’appartamento sarà dotato di impianto di riscaldamento a pavimento centralizzato con gestione autonoma, cappotto termico, serramenti in PVC con doppio vetro, predisposizione per raffrescamento, impianto antifurto e domotica, oltre a finiture interne personalizzabili di alto livello. L’edificio raggiungerà la classe energetica A3, garantendo consumi ridotti e massimo benessere indoor.
Il complesso si colloca in un contesto tranquillo ma strategico, a breve distanza da scuole, supermercati, stazione ferroviaria e tutte le principali vie di comunicazione.
Box auto doppio disponibile a parte.
Prezzo di vendita: € 614.200,00
Consegna prevista: inizio 2027
Contattaci per ricevere planimetrie, capitolato e ulteriori dettagli.













